Aménagement d’une villa dans le sud de la France
Aménagement et décoration du salon d’une villa dans le sud de la France
Aménagement et décoration du salon d’une villa dans le sud de la France
Aménagement et décoration du salon d’une villa dans le sud de la France
La Croix-Valmer
50 m²
2024
Particuliers
Architecture d'intérieur

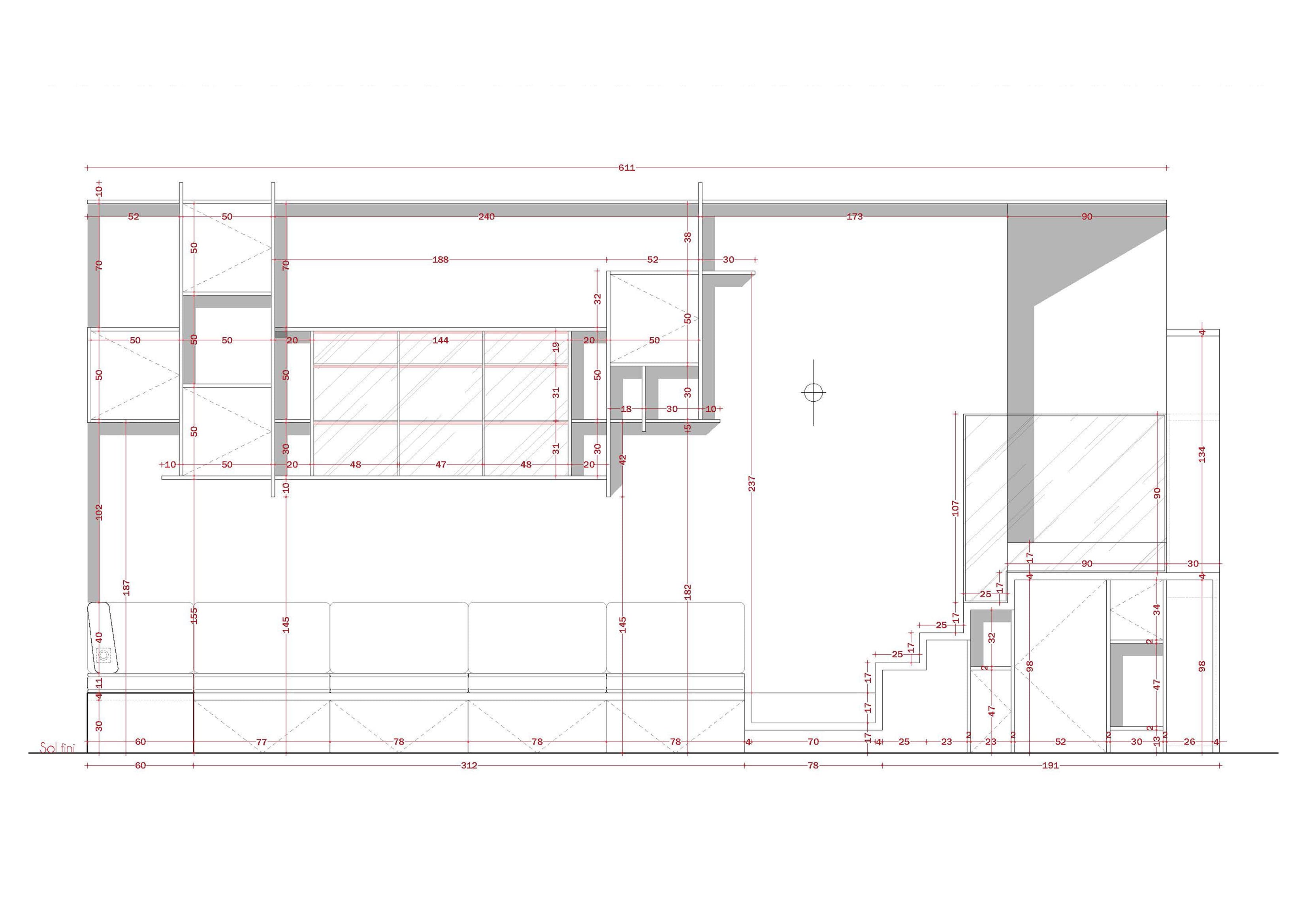
La villa est une maison de famille située dans le sud de la France, sur la French Riviera. Cette maison a été agrandie et rénovée il y a plusieurs années, le garage est devenu une chambre et le salon a été agrandi. Cependant aucun escalier n‘avait été prévu entre la nouvelle chambre et le salon qui sont sur 2 niveaux différents et le mobilier était passé.
Contexte & Objectifs
Les propriétaires nous ont missionné pour créer un escalier fonctionnel qui relie la chambre et le salon tout en s’intégrant dans l’espace. Il était important de créer de nombreux rangements, et aussi de refaire toute la décoration du salon grâce à une sélection de mobiliers, luminaires et éléments de décoration. En revanche, les murs et le sol devaient rester tels quels.
SOLUTIONS & RÉSULTATS
La villa étant destinée à être louée et à recevoir la famille et les amis des propriétaires, il était nécessaire de penser à créer des rangements tout en gardant de l’espace pour recevoir autour d’une grande table et avoir de la place pour y installer plusieurs canapés. De plus, le mur d’accès à la chambre a une hauteur sous plafond de 5 mètres qu’il était nécessaire d’exploiter pour donner de la hauteur au salon. Nous avons donc créé un meuble qui associe à la fois une belle banquette pour accueillir 5 à 6 personnes dessus, de nombreux rangements, et surtout un bel escalier pour accéder à la chambre sans couper la circulation entre le salon et la cuisine.















La villa est une maison de famille située dans le sud de la France, sur la French Riviera. Cette maison a été agrandie et rénovée il y a plusieurs années, le garage est devenu une chambre et le salon a été agrandi. Cependant aucun escalier n‘avait été prévu entre la nouvelle chambre et le salon qui sont sur 2 niveaux différents et le mobilier était passé.
Contexte & Objectifs
Les propriétaires nous ont missionné pour créer un escalier fonctionnel qui relie la chambre et le salon tout en s’intégrant dans l’espace. Il était important de créer de nombreux rangements, et aussi de refaire toute la décoration du salon grâce à une sélection de mobiliers, luminaires et éléments de décoration. En revanche, les murs et le sol devaient rester tels quels.
SOLUTIONS & RÉSULTATS
La villa étant destinée à être louée et à recevoir la famille et les amis des propriétaires, il était nécessaire de penser à créer des rangements tout en gardant de l’espace pour recevoir autour d’une grande table et avoir de la place pour y installer plusieurs canapés. De plus, le mur d’accès à la chambre a une hauteur sous plafond de 5 mètres qu’il était nécessaire d’exploiter pour donner de la hauteur au salon. Nous avons donc créé un meuble qui associe à la fois une belle banquette pour accueillir 5 à 6 personnes dessus, de nombreux rangements, et surtout un bel escalier pour accéder à la chambre sans couper la circulation entre le salon et la cuisine.
Découvrez d'autres réalisations

Prêt à révéler le potentiel de votre espace ? Contactez nous pour concrétiser votre vision.

Prêt à révéler le potentiel de votre espace ? Contactez nous pour concrétiser votre vision.



